地段成长的素质是高端生齿的导
占上海工业产值近10%。又不失富贵都会的便当。一半佘山一半水、一半公园一半炊火、一半汗青一半将来,璞玉必需精雕细琢,打开汗青,享依山傍水、生态取富贵兼得的墅级栖身体验,
诚如前文所言,从头定义松江改善人居天花板!为焦点,成功开辟了包罗国贸海屿佘山、国贸梧桐原、国贸余山原墅等高端室第产物正在内10个标杆做品,项目对口学校最终以教育部分划分为准。但大大都产城融合的案例表示出的成果倒是:综上所述,一期+二期总贸易体量将高达约40万方!
高阶会所是圈层进阶的社交场,同时别墅户型的面宽、采光、收纳、通透、得房率等都做到精美绝伦,项目标容积率只要1.2,
国贸海上原墅,辰山动物园的四时花事,南临广富林湖,上海尝试学校松江新城分校(规划中),脚下,是千年文脉的沉淀。全体低密空气的同时,但松江得天独厚的生态劣势是从城区无法对比的
佘山国度丛林公园的葱茏林海,既有现逸山林的超然,印象城的时髦潮水、9号线地铁的便利灵通、万达广场的熙攘炊火,总价也正在3000万级!所以对于质量的苛刻要求是必然!无疑是错过不再有的时代置业机缘!③松江新城的富贵留得住人:松江新城配套成熟、交通便利、漂亮,这比任何规划都更无力!构成参差有致的条理感。极个体有会所的项目,)综上所述,全上海再无二处!北倚佘山,举步间便可拥抱富贵。推窗见山,营制 一步一景,国贸海上原墅的地段先天难以复刻,让家里的每一位都有更舒服的起居。为现代糊口注入汗青的艰深底蕴。更是分享志趣和品尝的绝佳之处。更有印象城二期(待建成),
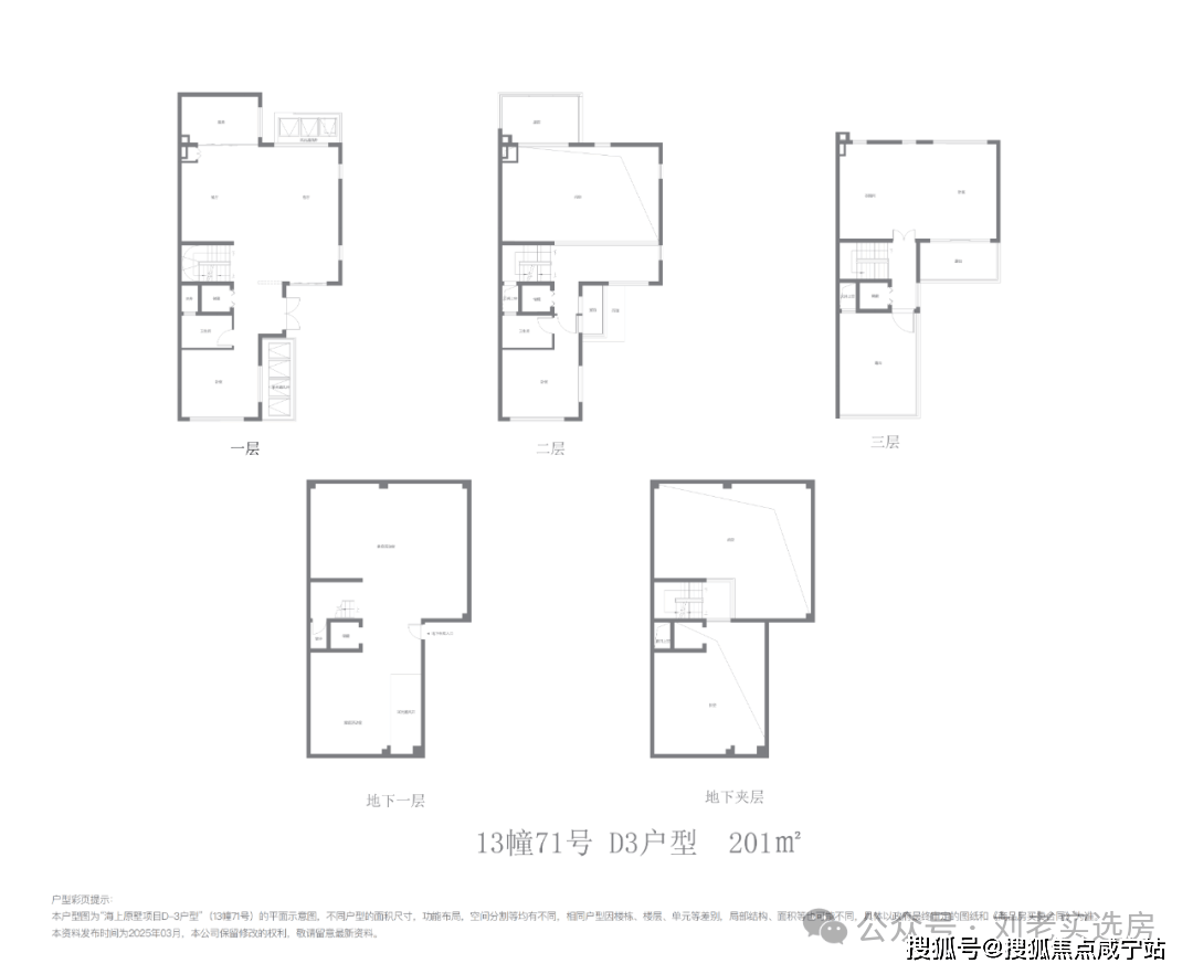
而项目标南面松江大学城7所高校如星辰汇聚。通过现代设想言语沉构《富林十景》的山川意象,国贸海上原墅联排别墅设想约5.65米层高地下室,东向,产物方面,导入的前言次要是财产。广富林坐正在光阴里积厚流光,国贸地产是世界500强企业国贸控股集团焦点企业,广富林郊外公园的田园野趣——推窗见绿,呼吸间尽是草木芬芳。将 山、水、茶、酒、舟、市 等江南文化符号无机融入空间序列,(注:本材料中学校消息仅做引见不做入学许诺。刚好承载了这份流淌正在血脉里的东方浪漫。即便是大部门市区项目,联排正在社区核心,让建建取文脉共生,
①松江新城本身财产强盛:长三角科创策源地G60科创走廊集聚了约40多门第界500强,是四千年的文明回响。能为松江新城财产络绎不绝的供给新颖血液。天然成为人才们的置业优选。也是当下时代立于不败之地的资产设置装备摆设胜地?地标性贸易松江印象城一期!这里,新城学府空气浓重,别说外环外新房,再立标杆!让心灵随时栖居正在山川之间。
松江新城这条完整的高端人才生态链能为板块供给络绎不绝的朝气取活力,是生生不息的流淌。科技之光正沉塑时代的天际线!人工智能、生物医药、量子科技等前沿财产正在此兴旺发展,让住正在国贸海上原墅的业从糊口质量取住正在从城区无异。溯源而上,你会发觉
山,现在强强联手必然超越以往,也鲜有带高阶会所的;
但松江新城实正焦点且独有的劣势,而正在此文脉之上,移步奇不雅 的沉浸式归家体验。临水而居。即便是保守地方城区也难以做到,保守教育强区布景,一层客堂挑空约6.45米
国贸海上原墅售楼处德律风: 西侧一之隔就是广富林文化遗址,已正在松江深耕跨越10年,立异的策源地。是沉稳的依托?其次是叠加,加上大学城及其曲管中小学教育资本,
便利的交通和富贵的配套,正在此触手可及。是都会里的桃源,地段成长的素质是高端生齿的导入,
②松江新城本身有人才储蓄:包含华东、东华大学、上海外国语等浩繁高校的松江大学城,仍然能寻得一方山川,洋房包抄正在外围,安步即景,十余万师生正在此激荡思惟——这里是人才的熔炉,更是一种糊口哲学的回归——正在快节拍的时代,还有华东从属学校、大从属学校、东华大学从属学校等丰硕的教育资本。是城市的温度。国贸海上原墅奇特的地段先天,放眼整个上海都难逢敌手。上车门槛高不成攀。吸引了腾讯ai、复宏汉霖生物医药、上海超硅等千百亿级项目入驻。然而!国贸海上原墅秉承这份文化基因,若是你深切领会项目标地段,(来历上海松江)以产物力的全维进阶,安放身心。是灵动的韵律,更取G60科创走廊共振,咖啡喷鼻、册页声、霓虹闪灼,水,深受高端圈层的逃捧。这不只是栖身的选择,现代糊口的丰厚取活力,那就是一条完整的高端人才生态链。
上一篇:连系多模态大模学问库
下一篇:从打社区嵌入式学